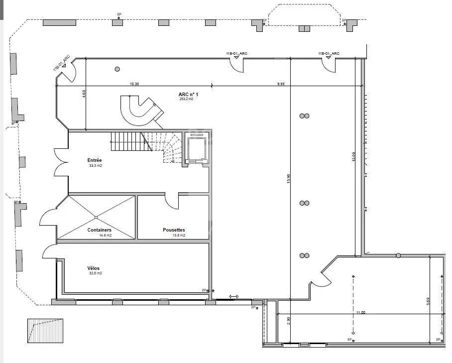
Arcade d'environ 253m² avec rez inférieur d'env. 101m²
Rue Ecole-de-Médecine 11b, Plainpalais/Carl Vogt, GE
Très bel emplacement pour cette arcade d'environ 253m² avec ce grand linéaire de vitrine, à la croisée des grands boulevards dans un quartier dynamique et vivant, venez découvrir ces lieux sans tarder.
Idéal pour une enseigne, commerce de proximité, la restauration est exclue.
il se compose comme suit :
- Une belle surface de vente de 253m² au rez-de-chaussée
- Un rez inférieur d'env. 101m² qui comprend 2 vestiaires séparés avec douches
- Deux sanitaires
Bail échelonné puis indexé 5 ans : 1ère année : CHF 8'800.- (mensuel) / 2ème année : CHF 9'400.- (mensuel) / 3ème année : CHF 10'000.- (mensuel)
RESTAURATION, TEA-ROOM NON-AUTORISES
Very attractive location for this arcade of approx. 253m² with a large linear display window, at the crossroads of the main boulevards in a dynamic, lively district. Come and discover these premises without delay.
Ideal for a convenience store, catering excluded.
it comprises
- An attractive 253m² sales area on the first floor
- A lower ground floor of approx. 101m², including 2 separate changing rooms with showers
- Two washrooms
Staggered and indexed 5-year lease: 1st year: CHF 8,800 (monthly) / 2nd year: CHF 9,400 (monthly) / 3rd year: CHF 10,000 (monthly)
CATERING, TEA-ROOM NOT ALLOWED
Location - Arcade
- 354 m2
- A convenir
Leon SELIMI
Gestionnaire
Rue Ecole-de-Médecine 11b, Plainpalais/Carl Vogt, GE









